

Terrain à bâtir – Ploulec H (22300) – 38900€
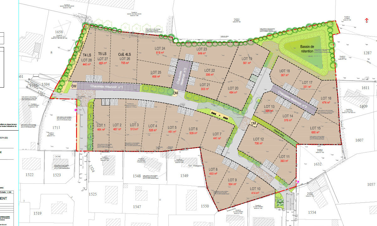
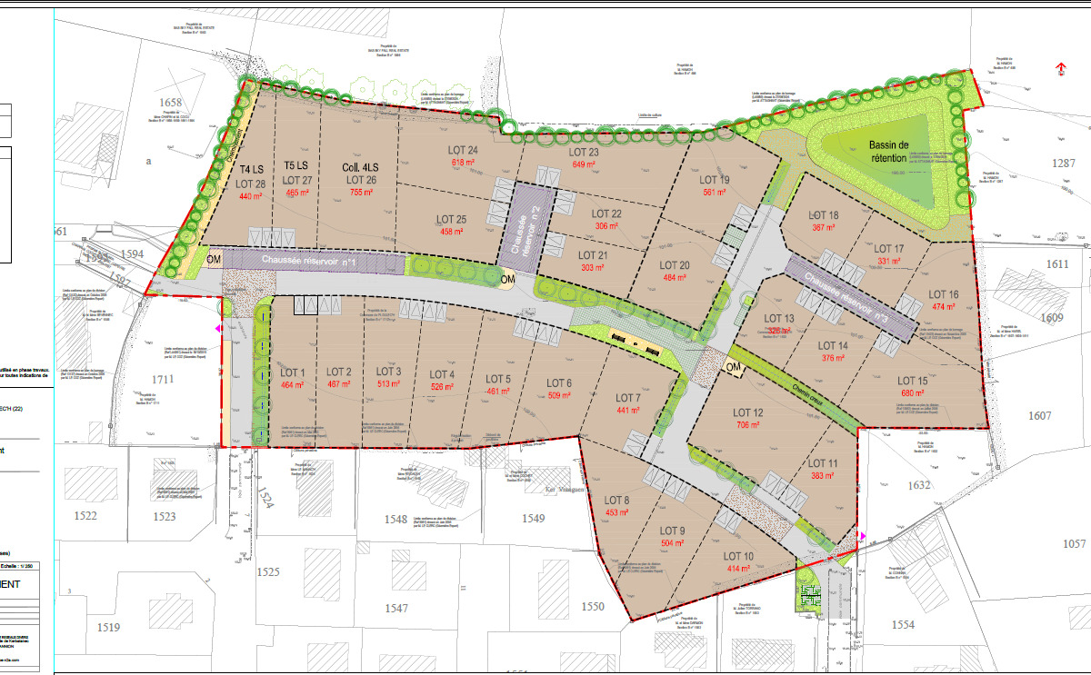
Lotissement à prix attractif à Ploulec’h – terrains viabilisés de 300 à 700 m², à 5 minutes de Lannion
Ne manquez pas cette opportunité rare sur la commune recherchée de Ploulec’h, à seulement 5 minutes de Lannion et de ses commodités.
Ce lotissement neuf propose des terrains viabilisés de 300 à 700 m², prêts à bâtir, parfaits pour accueillir votre maison individuelle sur mesure ou pour un investissement immobilier durable.
Situé dans un environnement calme et verdoyant, le site offre un cadre de vie agréable, entre campagne et proximité urbaine. Commerces, écoles et services sont rapidement accessibles, offrant le confort du quotidien dans un quartier résidentiel de qualité.
Une occasion à ne pas manquer pour devenir propriétaire à Ploulec’h, dans une commune dynamique et conviviale des Côtes-d’Armor.
Contactez-moi dès aujourd’hui pour connaître les terrains encore disponibles et obtenir une étude gratuite de votre projet de construction.
Disponibilité du terrain en fonction de notre partenaire foncier.
Prix hors frais de notaire
Exclusivité Langueux