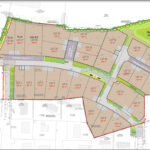
Terrain Lamballe

83 900 €
Terrain Lamballe

Aperçu

|
Référence PP-00
Surface habitable
768
Surface terrain
768
Neology Constructeur De Maison Lamballe Icone
Confidentialité

La protection de vos données est notre priorité absolue.

Neology Constructeur De Maison Lamballe Icone
Support 24/7

Assistance disponible à tout moment, jour et nuit.

Neology Constructeur De Maison Lamballe Icone
Réactivité

Réponses rapides et solutions adaptées à vos besoins.

Neology Constructeur De Maison Lamballe Logo Neology Agence

Néology – PP