
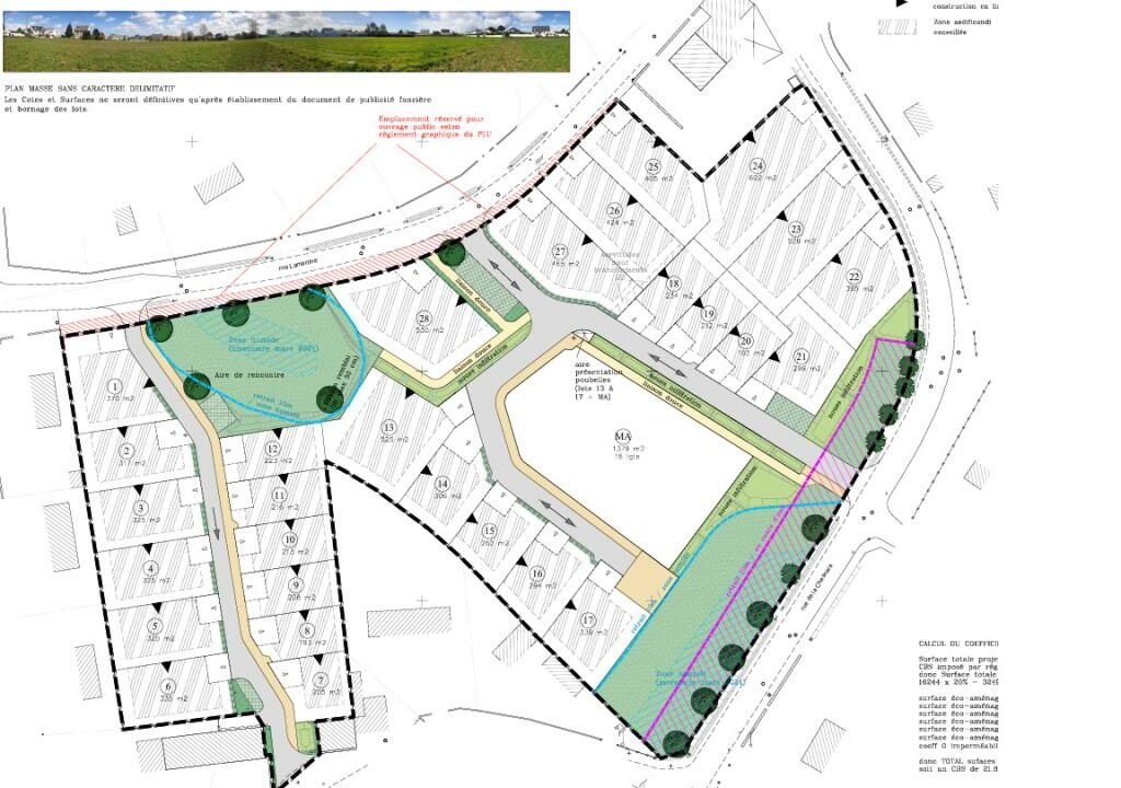
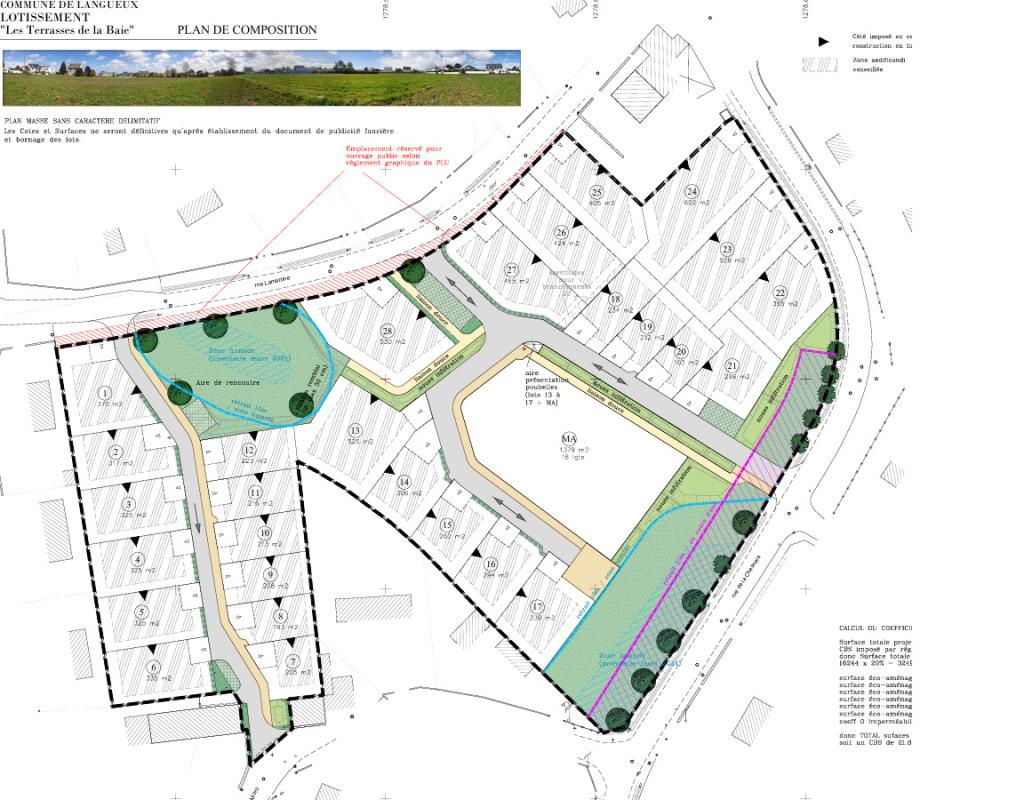
Terrain à bâtir – Langueux (22360) – 82900€
Situés dans un nouveau lotissement de 28 lots à Langueux, rue Lamartine, plusieurs terrains constructibles sont encore disponibles. Environnement calme et agréable, idéal pour votre projet de construction.
Lots disponibles :
Lot 4 : 325 m² – 82 900 €
Lot 5 : 325 m² – 82 900 €
Lot 23 : 529 m² – 136 900 €
Lot 25 : 405 m² – 102 900 €
Lot 26 : 424 m² – 107 900 €
Lot 28 : 530 m² – 134 900 €
Terrains viabilisés, proches des commodités, écoles et axes principaux. Dépôt permis de construire en fin d’année 2026
Pour plus d’informations ou pour organiser une visite, n’hésitez pas à me contacter.
Terrain disponible en fonction de notre partenaire foncier
Projet maison + terrain à Plouguiel